We believe every great project starts with a clear plan. Our services are fee-based, with a small token amount to get started. Let’s talk about your vision, budget, and how we can bring your ideas to life!
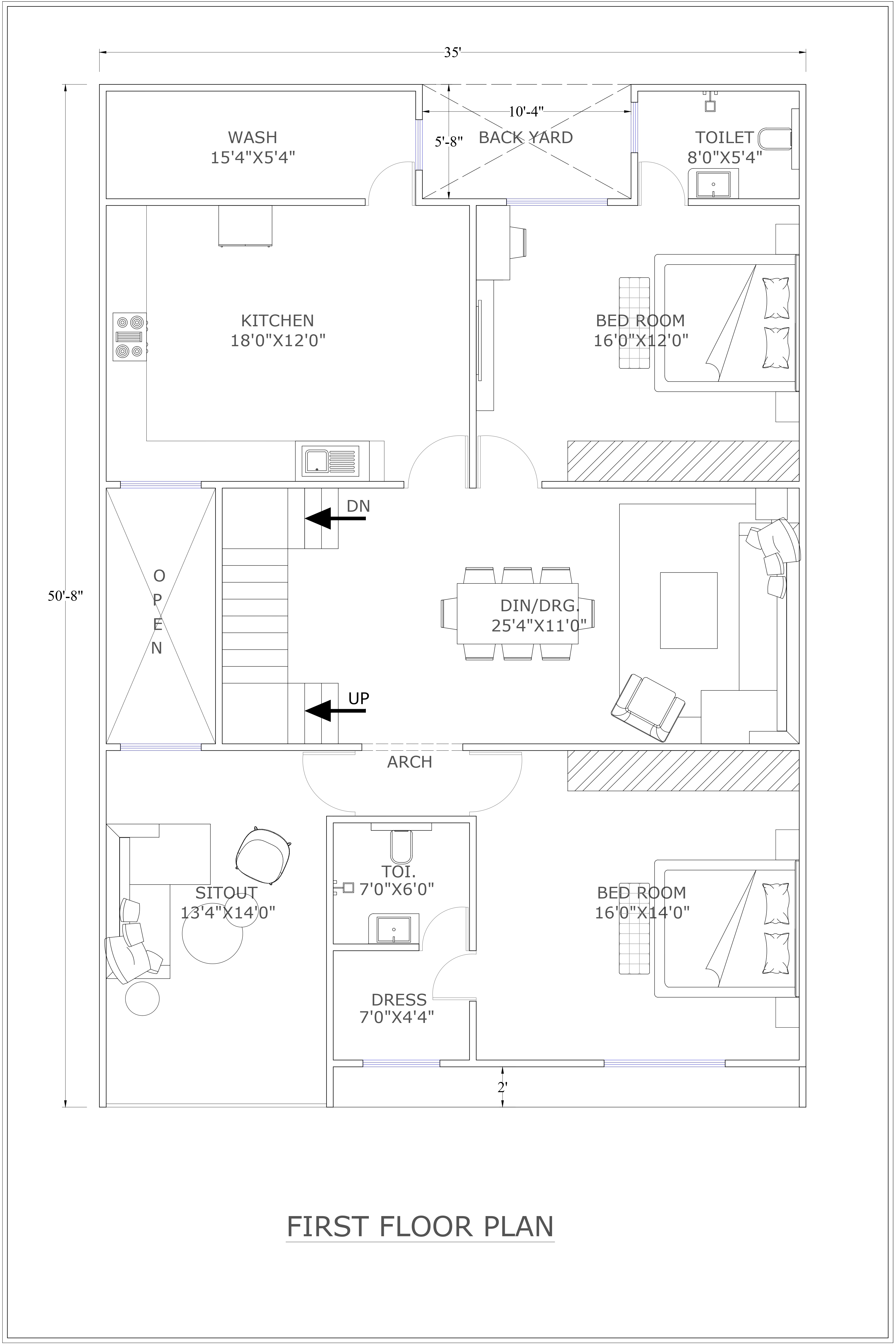
PLOT LENGTH
50ft (16.67 yd | 15.24 m)
PLOT WIDTH
35ft (11.67 yd | 10.67 m)
PLOT FACING
West
BUILTUP AREA
1750 SQFT (194.44 sq yd | 194.44 gaj | 6.428 marla | 162.58 sq m)
The design of a 35x50 house map first floor plan showcases how smart architecture can make even a compact home feel spacious and luxurious. This 1750 sq ft house plan is crafted to combine modern aesthetics with practical functionality, proving that limited square footage is never a barrier to beautiful home design.
To maximize the available space, the layout uses an open-concept approach that creates a seamless connection between living areas. Large, strategically positioned windows bring in abundant natural light, making the home feel warm, airy, and visually expanded. The clean elevation lines and contemporary materials used in the exterior further enhance the modern look of the 35x50 house map first floor plan.
Every interior space is designed with purpose, ensuring both comfort and usability. The architecture of this 35x50 house map first floor plan also integrates thoughtful landscaping, creating peaceful outdoor zones even in compact urban settings. Features like a patio or a small garden help blur the boundaries between indoor and outdoor living.
In conclusion, the 35x50 house map first floor plan is a perfect example of how innovative design can transform any plot size into a stylish and efficient home. This 1750 sq ft plan reflects Elevatia Creation’s expertise in delivering modern, budget-friendly, and aesthetically pleasing architectural solutions.
No packages available for this project. Please contact us for custom pricing.
Every great space begins with a thoughtful plan. At Elevatia Creation, we take the time to understand your style, needs, and goals before we start.